Home
Features
Location
Innovation Triangle-West Harlem
Factory District
Access
Spaces
Gallery
Downloads
Team
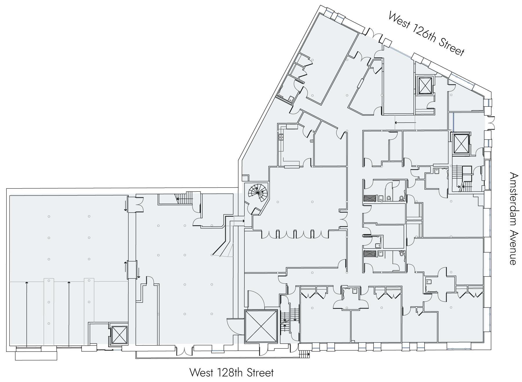
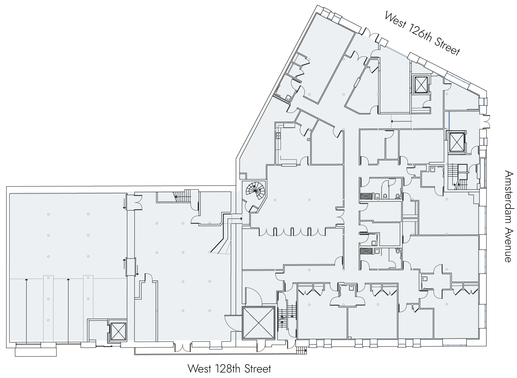
1st Floor
16,497 RSF
Download Floor Plans
Download Floor Plans
Privacy Preference Center
Privacy Preferences